Conjunto de Viviendas Parque Lezama

VIVIENDAS SOCIALES - IVC
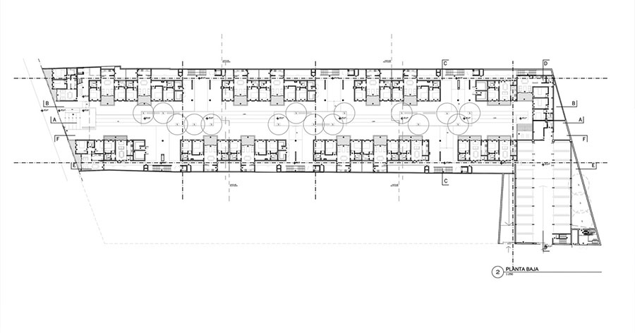
El proyecto se basa en el aprovechamiento del terreno al disponer una calle peatonal central y las tiras de viviendas sobre las medianeras.

De esta forma se consigue un máximo aprovechamiento de la iluminación y ventilación natural para la totalidad de los ambientes. Los accesos se producen desde la calle peatonal, verdadero corazón del proyecto, con áreas de descanso y arbolado e iluminación.
  • ObraConjunto de Viviendas Parque Lezama
  • Superficie13000 mt2
  • Año2015/17
El proyecto ajustado a la zonificación existente propone unidades de uno, dos y tres dormitorios, en planta baja, y cuatro pisos. Los estacionamientos se plantean por la calle Irala, sin impactar en la peatonalidad de la propuesta.
La estructura resistente es de hormigón armado, y todos los paramentos de mampostería. La imagen final representa cierto colorido alusivo al barrio de La Boca.