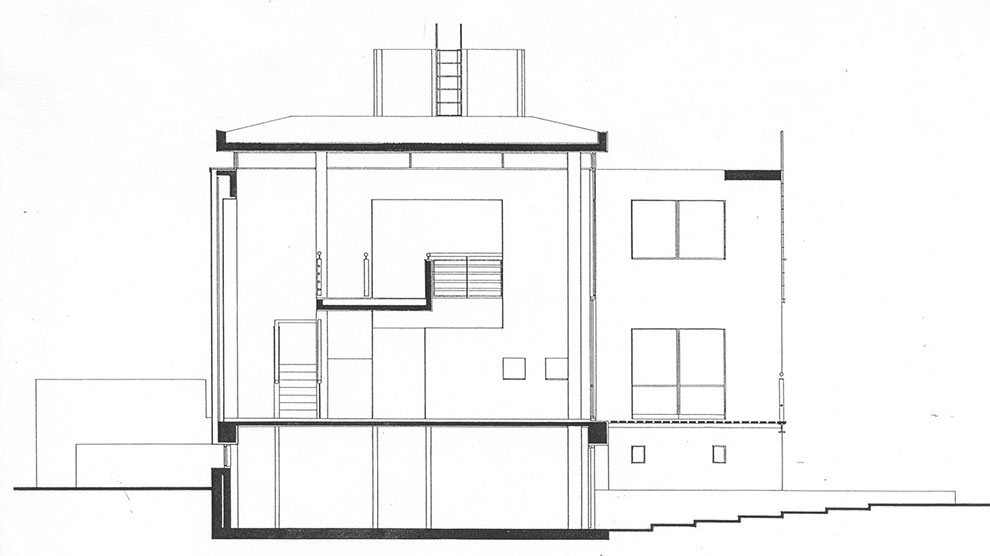
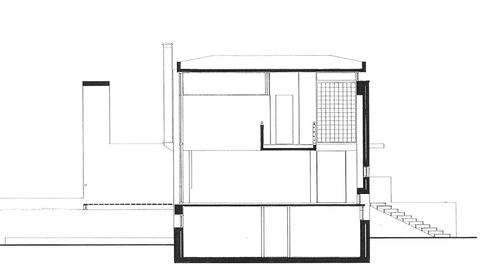
La casa se levanta sobre un terreno en barranca, con una fachada de ladrillos casi maciza que define de modo rotundo un "afuera". El interior es un gran ambiente "moderno", la losa de techo, de hormigón a la vista, se continua de unos ambientes en otros y se comprende todo el edificio.
ObraCorredor Verde del Oeste
Superficie400 m2
Año1988/1989
La luz de una vidriera de doble altura nos impone la continuidad hacia el jardín del fondo.